



Z44H,Z64H不銹鋼水封閘閥
Z44H、Z64H不銹鋼水封閘閥適用于公稱壓力PN1.6~10.0Mpa,工作溫度0~425℃的火力電站回水冷凝系統及石油、化工要求與大氣隔離的管道上,切斷或接通介質,適用介質為: 水、油品、蒸汽和非腐蝕氣體等。填料函設計成水密封結構,接入0.6~1.6Mpa的水填料,摩擦力小,密封好,能全系統與大氣 隔離,保證良好的氣密性。啟閉件采用雙閘板向彈性密封,啟閉可靠,性能良好。閥桿徑調質和表面氮化處理,有良好的搞腐蝕性和抗擦傷性。 結構簡單,緊湊合理,檢
| 產品名稱: | 不銹鋼水封閘閥 | 產品型號: | Z44H、Z64H |
| 公稱通徑: | DN15~DN1000 | 結構形式: | 閘板式 |
| 公稱壓力: | 1.6Mpa~6.4Mpa | 連接方式: | 法蘭 |
| 適用溫度: | -20ºC~+150ºC~425ºC~550ºC | 驅動方式: | 手動、傘齒輪、電動、氣動、液動 |
| 閥體材質: | WCB、鑄鋼、碳鋼、不銹鋼、鉻鉬鋼 | 制造標準: | 國標GB、德國DIN、美國API、ANSI |
| 適用介質: | 水、油、蒸汽 | 生產廠家: | 上海凱利科閥門有限公司 |
|
試驗壓力 Test pressure |
公稱壓力PN/MPa | |||||
| 1.0 | 1.6 | 2.5 | 4.0 | 6.4 | 10.0 | |
|
殼體強度試驗 Shell Strength test |
1.5 | 2.4 | 3.8 | 6.0 | 9.6 | 15.0 |
|
密封試驗 Seal test |
1.1 | 1.8 | 2.8 | 4.4 | 7.0 | 11.0 |
|
上密封試驗 Back seal test |
1.1 | 1.8 | 2.8 | 4.4 | 7.0 | 11.0 |
|
氣密封試驗 Leak- proofness test |
0.5~0.7 | |||||
|
產品類別 Product classification |
適用溫度/℃ Working temperature |
適用介質 Suitable medium |
|
碳鋼型(C) Carbon steel |
≤425 |
水、蒸汽、油品、非腐蝕性氣體 Water,Stem,oilgoods non-corrosive gas |
|
合金鋼(I) Alloy steel |
≤540 |
|
產品類型 Product type |
零件名稱 Part name |
|||||
| 閥體、閥蓋、支架 B0dy,BOnnet,Yoke |
閥桿 Valve rod |
閘板、閥瓣、密封面 Walge gate Disc Sealface |
閥座密封面 Seatring seal face |
閥桿螺母 Yoke nut |
填料 Packing |
|
| 碳鋼型(C) Carbon steel | WCB 25 | 1Crl3 或2Crl3 | Crl3型不銹鋼或硬質合金 Sainlesssteelor carbidealloy | 不銹鋼 Stainlesssteel | 鋁青銅 Albronze | 柔性石墨 F18xible graphite |
|
合金鋼(I) Alloy steel |
WC6 Cr5M01 | 38CrMoAlA 20CrlM01VA | 鈷基合金 |
硬質合金 Carbide alloy |
||
| 公稱壓力 PN(MPa) |
公稱通徑 DN/mm Nominal diameter |
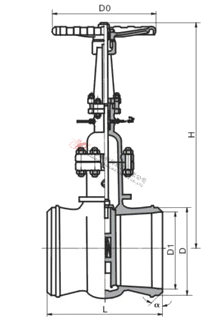
L | α | H | DO | PNl.6/MPa | |
| D | D1 | ||||||
|
Z64H-16C Z64H-16P Z64H-16I |
50 | 250 | 37o30' | 334 | 250 | 58 | 50 |
| 65 | 270 | 37o30' | 439 | 250 | 75 | 65 | |
| 80 | 280 | 37o30' | 495 | 300 | 91 | 79 | |
| 100 | 300 | 37o30' | 575 | 350 | 11O | 97 | |
| 125 | 325 | 37o30' | 587 | 350 | 136 | 121 | |
| 150 | 350 | 37o30' | 607 | 350 | 163 | 146 | |
| 200 | 400 | 37o30' | 740 | 400 | 223 | 202 | |
| 250 | 450 | 37o30' | 863 | 400 | 278 | 254 | |
| 300 | 500 | 37o30' | 990 | 400 | 330 | 305 | |
| 350 | 550 | 37o30' | 1137 | 500 | 382 | 352 | |
| 400 | 600 | 37o30' | 1523 | 500 | 432 | 399 | |
| 450 | 650 | 37o30' | 1618 | 600 | 485 | 451 | |
| 500 | 700 | 37o30' | 1657 | 600 | 535 | 501 | |
| 600 | 800 | 37o30' | 1746 | 700 | 636 | 601 | |
| 公稱壓力 PN(MPa) |
公稱通徑 DN/mm Nominal diameter |
L | α | H | DO | PN2.5/MPa | |
| D | D1 | ||||||
|
Z64H-25C Z64H-25P Z64H-25I |
50 | 250 | 37o30' | 334 | 250 | 64 | 4g |
| 65 | 270 | 37o30' | 439 | 250 | 82 | 67 | |
| 80 | 280 | 37o30' | 495 | 300 | 95 | 77 | |
| 100 | 300 | 37o30' | 575 | 350 | 117 | 101 | |
| 125 | 325 | 37o30' | 587 | 350 | 144 | 126 | |
| 150 | 350 | 37o30' | 607 | 350 | 172 | 158 | |
| 200 | 400 | 37o30' | 740 | 400 | 223 | 202 | |
| 250 | 450 | 37o30' | 863 | 400 | 278 | 254 | |
| 300 | 500 | 37o30' | 990 | 400 | 330 | 305 | |
| 350 | 550 | 37o30' | 1137 | 500 | 382 | 352 | |
| 400 | 600 | 37o30' | 1523 | 500 | 432 | 39g | |
| 450 | 650 | 37o30' | 1618 | 600 | 485 | 451 | |
| 500 | 700 | 37o30' | 1657 | 600 | 535 | 499 | |
| 600 | 800 | 37o30' | 1746 | 700 | 636 | 599 | |
| 公稱壓力 PN(MPa) |
公稱通徑 DN/mm Nominal diameter |
L | D | α | PN4.O/MPa | ||
| D1 | H | D0 | |||||
|
Z64H-40C Z64H-40P Z64H-40I |
50 | 250 | 64 | 37o30' | 49 | 345 | 300 |
| 65 | 270 | 83 | 37o30' | 67 | 441 | 300 | |
| 80 | 280 | 96 | 37o30' | 79 | 495 | 350 | |
| 100 | 300 | 117 | 37o30' | 101 | 575 | 350 | |
| 125 | 325 | 144 | 37o30' | 126 | 587 | 400 | |
| 150 | 350 | 172 | 37o30' | 152 | 607 | 400 | |
| 200 | 400 | 223 | 37o30' | 200 | 740 | 450 | |
| 250 | 450 | 278 | 37o30' | 252 | 863 | 550 | |
| 300 | 500 | 330 | 37o30' | 302 | 1008 | 650 | |
| 350 | 550 | 382 | 37o30' | 350 | 1142 | 750 | |
| 400 | 650 | 432 | 37o30' | 397 | 1527 | 850 | |
| 公稱壓力 PN(MPa) |
公稱通徑 DN/mm Nominal diameter |
L | D | α | PN6.4/MPa | ||
| D1 | H | DO | |||||
|
Z64H-64C Z64H-64P Z64H-64I |
50 | 250 | 64 | 37o30' | 50 | 350 | 300 |
| 65 | 270 | 83 | 37o30' | 66 | 447 | 300 | |
| 80 | 280 | 96 | 37o30' | 77 | 499 | 350 | |
| 100 | 300 | 117 | 37o30' | 99 | 582 | 400 | |
| 125 | 325 | 144 | 37o30' | 129 | 590 | 400 | |
| 150 | 350 | 172 | 37o30' | 150 | 611 | 450 | |
| 200 | 400 | 223 | 37o30' | 198 | 745 | 550 | |
| 250 | 450 | 278 | 37o30' | 246 | 867 | 650 | |
| 300 | 500 | 330 | 37o30' | 294 | 1008 | 750 | |
| 350 | 550 | 382 | 37o30' | 342 | 1148 | 800 | |
| 400 | 650 | 432 | 37o30' | 387 | 1531 | 900 | |
| 公稱壓力 PN(MPa) |
公稱通徑 DN/mm Nominal diameter |
L | D | α | PNlO.0/MPa | ||
| D1 | H | D0 | |||||
|
Z64H-100C Z64H-100P Z64H-100I |
50 | 250 | 64 | 37o30' | 49 | 350 | 300 |
| 65 | 270 | 83 | 37o30' | 64 | 447 | 300 | |
| 80 | 280 | 96 | 37o30' | 75 | 499 | 350 | |
| 100 | 300 | 117 | 37o30' | 87 | 582 | 400 | |
| 125 | 325 | 144 | 37o30' | 125 | 590 | 400 | |
| 150 | 350 | 172 | 37o30' | 145 | 611 | 450 | |
| 200 | 400 | 223 | 37o30' | 190 | 747 | 550 | |
| 250 | 450 | 278 | 37o30' | 236 | 869 | 650 | |
| 300 | 500 | 330 | 37o30' | 282 | 1013 | 750 | |
| 350 | 550 | 382 | 37o30' | 334 | 1148 | 850 | |
| 400 | 650 | 432 | 37o30' | 377 | 1533 | 950 | |
| 公稱壓力 PN(MPa) | 公稱通徑 DN(mm) | 主要外形尺寸及連接尺寸(mm) | 閥門重量(kg) | 附法蘭尺寸(mm) | 重量 (kg) | ||||||||||
| L | H | D | D1 | D2 | b | f | Z-d | W | h | Do | Dn | ||||
|
Z44H-16C Z44H-16P Z44H-16I |
50 | 250 | 345 | 160 | 125 | 100 | 16 | 3 | 4-18 | 250 | 28 | 48 | 49 | 58 | 2.5 |
| 65 | 270 | 395 | 180 | 145 | 120 | 18 | 3 | 4-18 | 250 | 40 | 50 | 64 | 75 | 3.4 | |
| 80 | 280 | 425 | 195 | 160 | 135 | 20 | 3 | 8-18 | 300 | 58 | 52 | 78 | 91 | 4.4 | |
| 100 | 300 | 510 | 215 | 180 | 155 | 20 | 3 | 8-18 | 300 | 75 | 52 | 96 | 110 | 5.2 | |
| 125 | 325 | 570 | 245 | 210 | 185 | 22 | 3 | 8-18 | 350 | 110 | 60 | 120 | 136 | 7 | |
| 150 | 350 | 725 | 280 | 240 | 210 | 24 | 3 | 8-23 | 350 | 150 | 60 | 145 | 163 | 9 | |
| 200 | 400 | 820 | 335 | 295 | 265 | 26 | 3 | 12-23 | 400 | 223 | 62 | 201 | 223 | 12 | |
| 250 | 450 | 890 | 405 | 355 | 320 | 30 | 3 | 12-25 | 450 | 326 | 68 | 253 | 278 | 19 | |
| 300 | 500 | 1070 | 460 | 410 | 375 | 30 | 3 | 12-15 | 550 | 432 | 70 | 303 | 330 | 25 | |
| 350 | 550 | 1320 | 520 | 470 | 425 | 34 | 4 | 16-25 | 600 | 572 | 78 | 351 | 382 | 33 | |
| 400 | 600 | 1450 | 580 | 525 | 485 | 36 | 4 | 16-30 | 650 | 740 | 90 | 398 | 432 | 43 | |
| 450 | 650 | 1560 | 640 | 585 | 545 | 40 | 4 | 20-30 | 700 | 955 | 95 | 450 | 485 | 54 | |
| 500 | 700 | 1720 | 705 | 650 | 608 | 44 | 4 | 20-34 | 750 | 1195 | 98 | 500 | 535 | 72 | |
| 600 | 800 | 1880 | 840 | 770 | 718 | 48 | 5 | 20-41 | 800 | 1455 | 105 | 600 | 636 | 91 | |
| 700 | 900 | 2085 | 910 | 840 | 788 | 50 | 5 | 24-41 | 850 | 2110 | 110 | 690 | 726 | 103 | |
| 800 | 1000 | 2590 | 1020 | 950 | 898 | 52 | 5 | 24-41 | 950 | 2630 | 115 | 790 | 826 | 126 | |
| 公稱壓力 PN(MPa) | 公稱通徑 DN(mm) | 主要外形尺寸及連接尺寸(mm) | 閥門重量(kg) | 附法蘭尺寸(mm) | 重量 (kg) | ||||||||||
| L | H | D | D1 | D2 | b | f | Z-d | W | h | D0 | Dn | ||||
|
Z44H-25C Z44H-25P Z44H-25I |
50 | 250 | 345 | 160 | 125 | 100 | 20 | 3 | 4-18 | 250 | 30 | 48 | 49 | 64 | 2.9 |
| 65 | 270 | 395 | 180 | 145 | 120 | 22 | 3 | 8-18 | 250 | 43 | 52 | 66 | 82 | 3.8 | |
| 80 | 280 | 425 | 195 | 160 | 135 | 22 | 3 | 8-18 | 300 | 60 | 55 | 78 | 95 | 4.8 | |
| 100 | 300 | 510 | 230 | 190 | 160 | 24 | 3 | 8-23 | 300 | 79 | 62 | 100 | 117 | 7 | |
| 125 | 325 | 570 | 270 | 220 | 188 | 28 | 3 | 8-25 | 350 | 114 | 68 | 125 | 144 | 10 | |
| 150 | 350 | 725 | 300 | 250 | 218 | 30 | 3 | 8-25 | 350 | 157 | 72 | 151 | 172 | 13 | |
| 200 | 400 | 820 | 360 | 310 | 278 | 34 | 3 | 12-25 | 400 | 243 | 60 | 201 | 223 | 19 | |
| 250 | 450 | 890 | 425 | 370 | 332 | 36 | 3 | 12-30 | 450 | 345 | 85 | 253 | 278 | 23 | |
| 300 | 500 | 1070 | 483 | 430 | 390 | 40 | 4 | 16-30 | 550 | 455 | 92 | 303 | 330 | 35 | |
| 350 | 550 | 1320 | 550 | 490 | 448 | 44 | 4 | 16-34 | 650 | 615 | 98 | 351 | 382 | 54 | |
| 400 | 600 | 1450 | 610 | 550 | 505 | 48 | 4 | 16-34 | 700 | 794 | 115 | 398 | 432 | 68 | |
| 450 | 650 | 1560 | 660 | 600 | 555 | 50 | 4 | 20-34 | 750 | 1018 | 115 | 450 | 483 | 85 | |
| 500 | 700 | 1720 | 730 | 660 | 610 | 52 | 4 | 20-41 | 800 | 1250 | 120 | 498 | 535 | 95 | |
| 600 | 800 | 1880 | 840 | 770 | 718 | 56 | 5 | 20-41 | 850 | 1528 | 130 | 598 | 636 | 128 | |
| 700 | 900 | 2085 | 955 | 875 | 815 | 60 | 5 | 24-48 | 900 | 2265 | 140 | 688 | 726 | 175 | |
| 800 | 1000 | 2590 | 1070 | 990 | 930 | 64 | 5 | 24-48 | 1000 | 2847 | 150 | 788 | 826 | 230 | |
| 公稱壓力 PN(MPa) | 公稱通徑 DN(mm) | 主要外形尺寸及連接尺寸(mm) | 閥門重量(kg) | 附法蘭尺寸(mm) | 重量 (kg) | ||||||||||||
| L | H | D | D1 | D2 | b | f | D6 | f2 | Z-d | W | h | D0 | Dn | ||||
|
Z44H-40C Z44H-40P Z44H-40I |
50 | 250 | 345 | 160 | 125 | 100 | 20 | 3 | 88 | 4 | 4-18 | 300 | 35 | 48 | 48 | 64 | 3 |
| 65 | 270 | 395 | 180 | 145 | 120 | 22 | 3 | 110 | 4 | 8-18 | 300 | 49 | 52 | 66 | 82 | 4 | |
| 80 | 280 | 425 | 195 | 160 | 135 | 22 | 3 | 121 | 4 | 8-18 | 350 | 65 | 58 | 78 | 95 | 5.3 | |
| 100 | 300 | 510 | 230 | 190 | 160 | 24 | 3 | 150 | 4.5 | 8-23 | 350 | 87 | 68 | 100 | 117 | 7.8 | |
| 125 | 325 | 570 | 270 | 220 | 188 | 28 | 3 | 176 | 4.5 | 8-25 | 400 | 124 | 68 | 125 | 144 | 11 | |
| 150 | 350 | 725 | 300 | 250 | 218 | 30 | 3 | 204 | 4.5 | 8-25 | 400 | 172 | 72 | 151 | 172 | 14 | |
| 200 | 400 | 820 | 375 | 320 | 282 | 38 | 3 | 260 | 4.5 | 12-30 | 450 | 275 | 88 | 199 | 223 | 26 | |
| 250 | 450 | 890 | 456 | 385 | 345 | 42 | 3 | 313 | 4.5 | 12-34 | 550 | 392 | 102 | 251 | 278 | 38 | |
| 300 | 500 | 1070 | 510 | 450 | 408 | 46 | 4 | 364 | 4.5 | 16-34 | 650 | 515 | 116 | 301 | 330 | 54 | |
| 350 | 550 | 1320 | 570 | 510 | 465 | 52 | 4 | 422 | 5 | 16-34 | 750 | 684 | 120 | 349 | 382 | 68 | |
| 400 | 600 | 1450 | 655 | 585 | 535 | 58 | 4 | 474 | 5 | 16-41 | 850 | 902 | 142 | 396 | 432 | ||
| 公稱壓力 PN(MPa) | 公稱通徑 DN(mm) | 主要外形尺寸及連接尺寸(mm) | 閥門重量(kg) | 附法蘭尺寸(mm) | 重量 (kg) | ||||||||||||
| L | H | D | D1 | D2 | b | f | D6 | f2 | z-d | W | h | Do | Dn | ||||
|
Z44H-64C Z44H-64P Z44H-64I |
50 | 250 | 350 | 175 | 135 | 105 | 26 | 3 | 88 | 4 | 4-23 | 300 | 43 | 70 | 48 | 64 | 4.7 |
| 65 | 280 | 405 | 200 | 160 | 130 | 28 | 3 | 110 | 4 | 8-23 | 300 | 60 | 75 | 65 | 82 | 6.5 | |
| 80 | 310 | 435 | 210 | 170 | 140 | 30 | 3 | 121 | 4 | 8-23 | 350 | 78 | 75 | 76 | 95 | 7.6 | |
| 100 | 350 | 515 | 250 | 200 | 168 | 32 | 3 | 150 | 4.5 | 8-25 | 400 | 100 | 88 | 98 | 117 | 12 | |
| 125 | 400 | 580 | 295 | 240 | 202 | 36 | 3 | 176 | 4.5 | 8-30 | 400 | 140 | 98 | 128 | 150 | 18 | |
| 150 | 450 | 735 | 340 | 280 | 240 | 38 | 3 | 204 | 4.5 | 8-34 | 450 | 204 | 110 | 149 | 172 | 26 | |
| 200 | 550 | 835 | 405 | 345 | 300 | 44 | 3 | 260 | 4.5 | 12-34 | 550 | 317 | 116 | 197 | 223 | 39 | |
| 250 | 650 | 905 | 470 | 400 | 352 | 48 | 3 | 313 | 4.5 | 12-41 | 650 | 475 | 122 | 245 | 278 | 54 | |
| 300 | 750 | 1080 | 530 | 460 | 412 | 54 | 4 | 364 | 4.5 | 16-41 | 750 | 630 | 136 | 293 | 330 | 72 | |
| 350 | 850 | 1340 | 595 | 525 | 475 | 60 | 4 | 422 | 5 | 16-41 | 800 | 850 | 154 | 341 | 382 | 105 | |
| 400 | 950 | 1460 | 670 | 585 | 525 | 66 | 4 | 474 | 5 | 16-48 | 900 | 1096 | 170 | 386 | 432 | 145 | |
| 公稱壓力 PN(MPa) | 公稱通徑 DN(mm) | 主要外形尺寸及連接尺寸(mm) | 閥門重量(kg) | 附法蘭尺寸(mm) | 重量 (kg) | ||||||||||||
| L | H | D | D1 | D2 | b | f | D6 | f2 | z-d | W | h | Do | Dn | ||||
|
Z44H-100C Z44H-100P Z44H-100I |
50 | 250 | 350 | 195 | 145 | 112 | 28 | 3 | 88 | 4 | 4-25 | 300 | 48 | 72 | 48 | 64 | 6.5 |
| 65 | 280 | 405 | 220 | 170 | 138 | 32 | 3 | 110 | 4 | 8-25 | 300 | 68 | 84 | 63 | 82 | 9.3 | |
| 80 | 310 | 435 | 230 | 180 | 148 | 34 | 3 | 121 | 4 | 8-25 | 350 | 89 | 90 | 74 | 95 | 10.8 | |
| 100 | 350 | 515 | 265 | 210 | 172 | 38 | 3 | 150 | 4.5 | 8-30 | 400 | 112 | 100 | 97 | 117 | 16 | |
| 125 | 400 | 580 | 310 | 250 | 210 | 42 | 3 | 176 | 4.5 | 8-34 | 400 | 156 | 115 | 124 | 150 | 25 | |
| 150 | 450 | 735 | 350 | 290 | 250 | 46 | 3 | 204 | 4.5 | 12-34 | 450 | 220 | 130 | 144 | 172 | 35 | |
| 200 | 550 | 835 | 430 | 360 | 312 | 54 | 3 | 260 | 4.5 | 12-41 | 550 | 352 | 145 | 189 | 223 | 58 | |
| 250 | 650 | 905 | 500 | 430 | 382 | 60 | 3 | 313 | 4.5 | 12-41 | 650 | 535 | 170 | 235 | 278 | 89 | |
| 300 | 750 | 1080 | 585 | 500 | 442 | 70 | 4 | 364 | 4.5 | 16-48 | 750 | 730 | 195 | 281 | 330 | 132 | |
| 350 | 850 | 1340 | 655 | 560 | 498 | 76 | 4 | 422 | 5 | 16-54 | 850 | 995 | 210 | 333 | 380 | 178 | |
| 400 | 950 | 1460 | 715 | 620 | 558 | 80 | 4 | 474 | 5 | 16-54 | 950 | 1265 | 220 | 376 | 432 | 224 | |
聲明:【Z44H,Z64H不銹鋼水封閘閥】規格型號、結構尺寸由上海凱利科閥門有限公司提供,如何選擇適用的Z44H,Z64H不銹鋼水封閘閥產品,使之在工藝控制中安全可靠、經濟適用,可致電我司銷售部門及技術部門,我們將在最短的時間內為您解答! |